Work
Contact
Work
Contact
REABILITAÇÃO DE APARTAMENTO FLORIANÓPOLIS- BRASIL
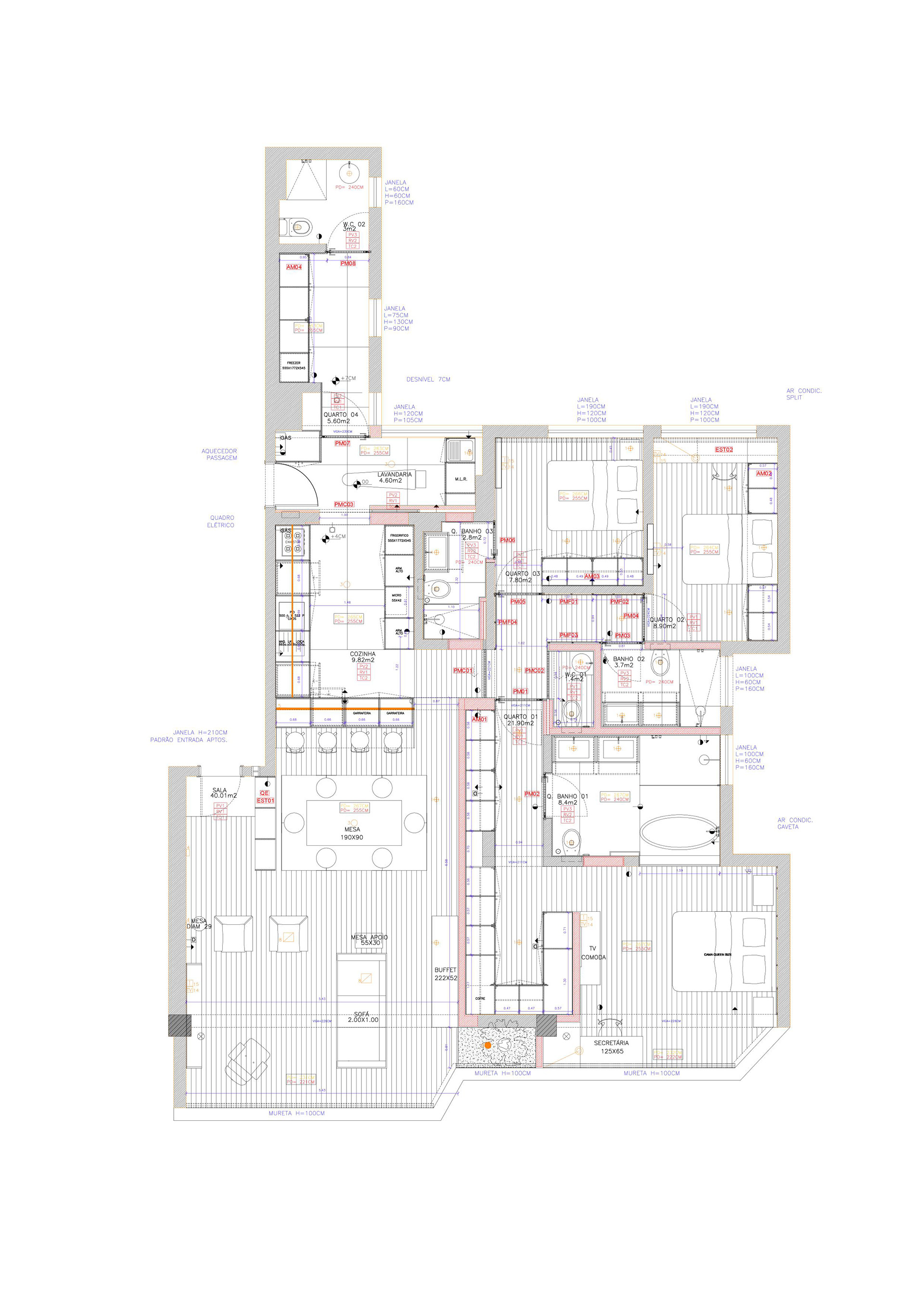
Planta Geral
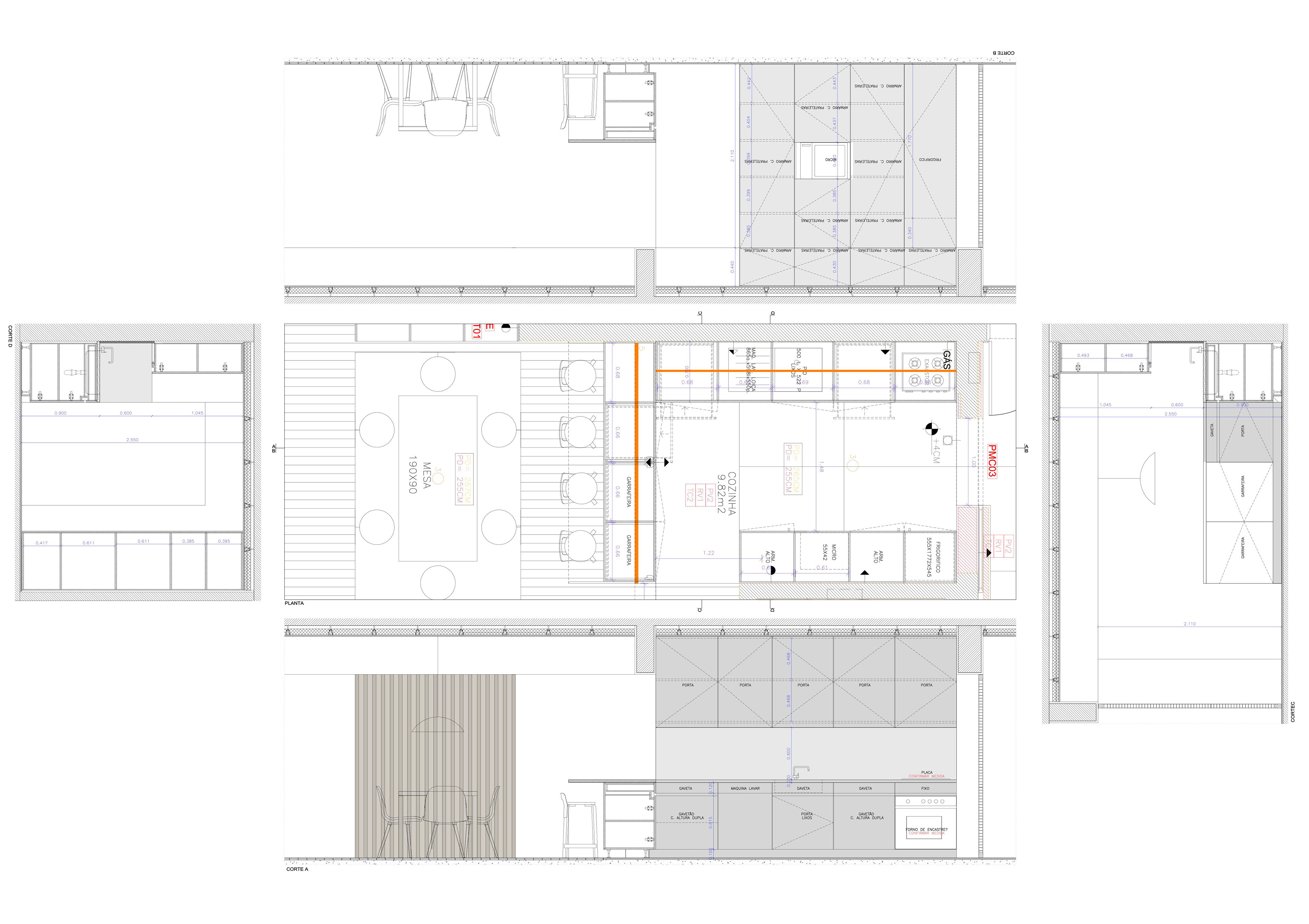
Pormenorização Cozinha
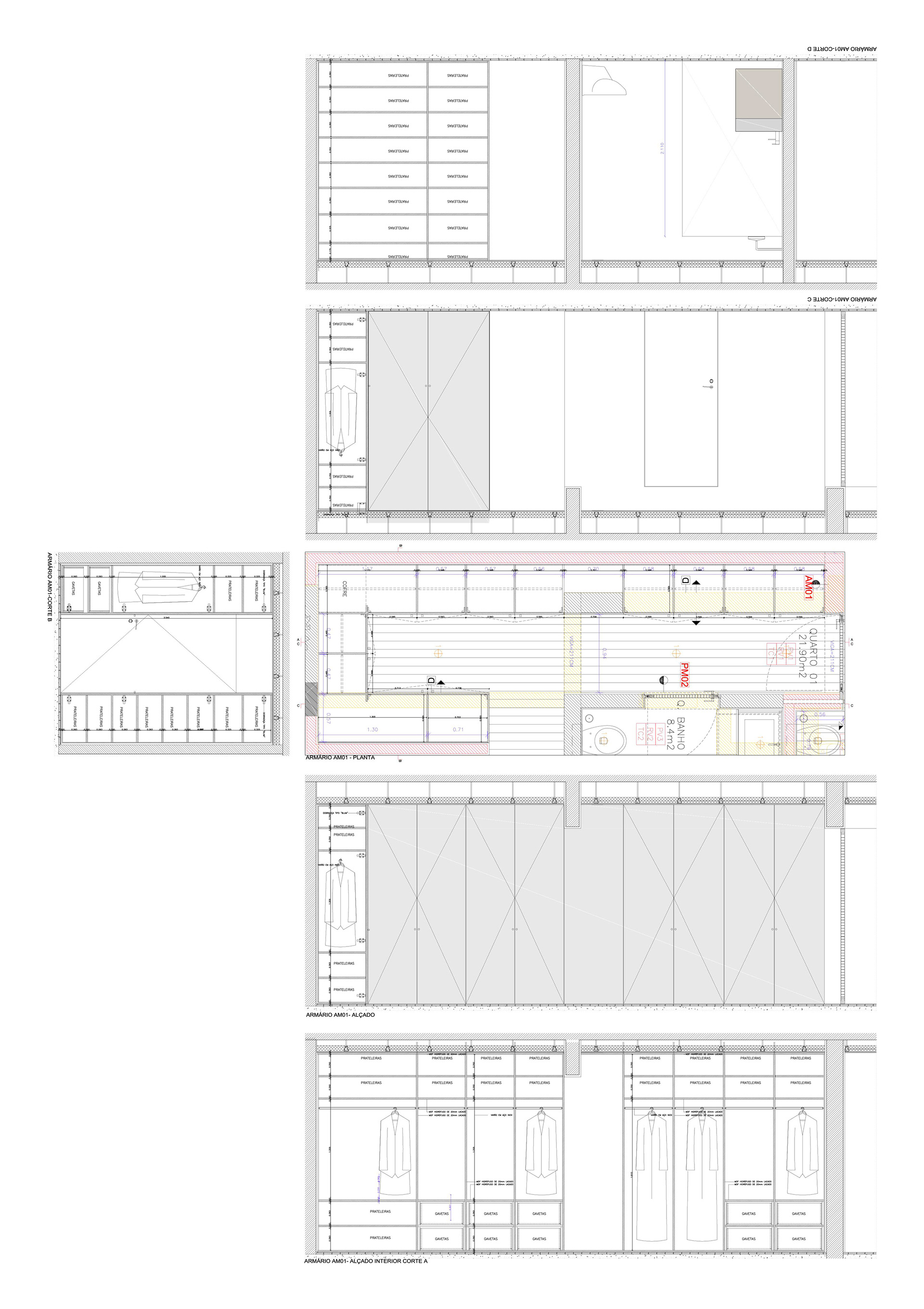
Pormenorização Carpintarias
Pormenorização Carpintarias
Pormenorização Vãos
You may also like
REABILITAÇÃO DE APARTAMENTO MASSARELOS
2020
Casa em Nevogilde
2016
REABILITAÇÃO DE CASA EM NEVOGILDE
2019
Studio Weelness
2020
REABILITAÇÃO DE APARTAMENTO FOZ VELHA
2020
CASA EM MATOSINHOS
2021
HOSTEL PRAÇA DA REPUBLICA
2016
REABILITAÇÃO RUA DO ALMADA
2017
REABILITAÇÃO RUA BARÃO DE SÃO COSME
2018
Projecto de interiores para guesthouse
2017
↑
Back to Top