Work
Contact
Work
Contact
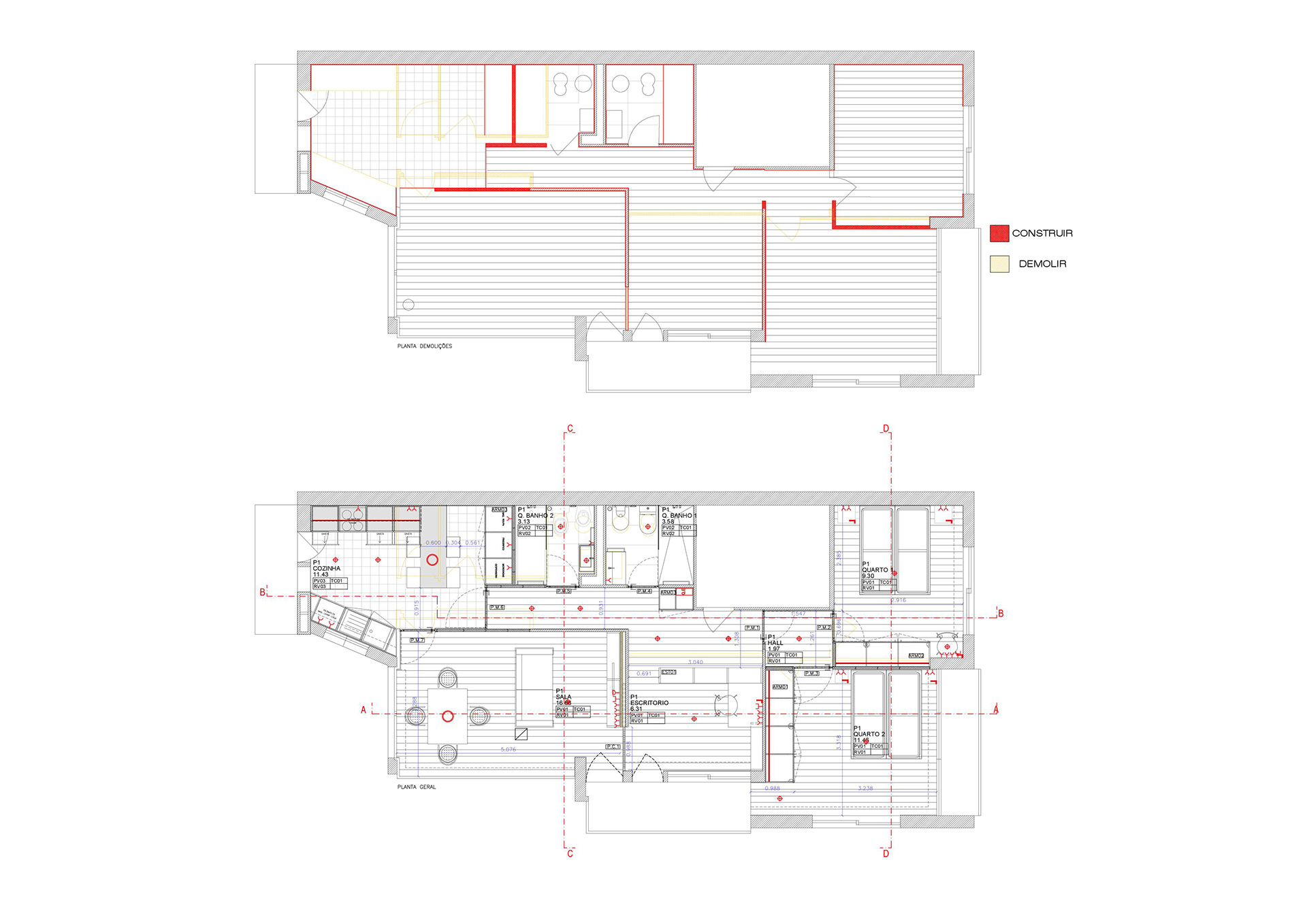
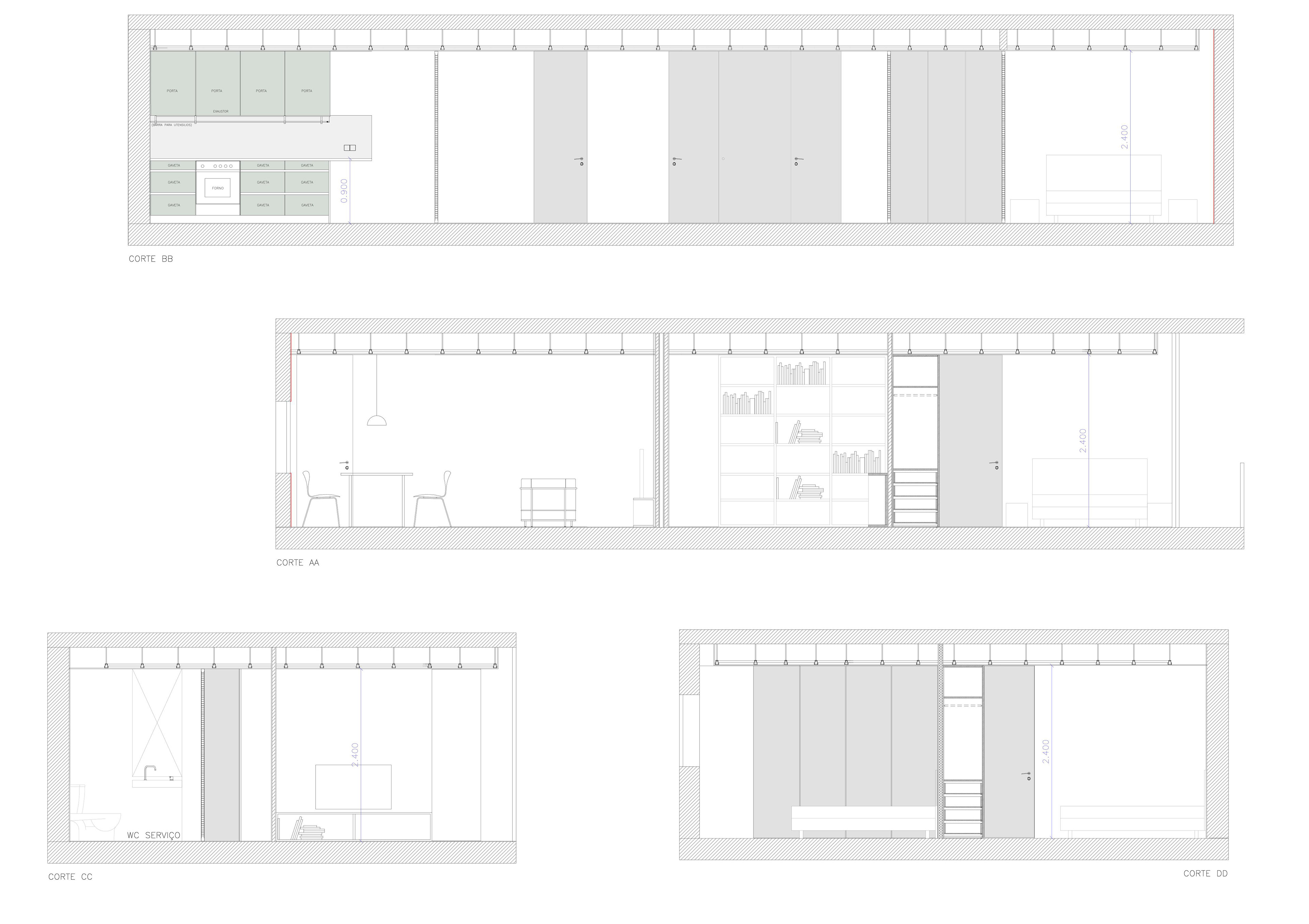
REABILITAÇÃO DE APARTAMENTO MASSARELOS
You may also like
REABILITAÇÃO DE APARTAMENTO FOZ VELHA
2020
Projecto de interiores para guesthouse
2017
CASA EM MATOSINHOS
2021
HOSTEL PRAÇA DA REPUBLICA
2016
LOJA RESTAURAÇÃO YOVO
2016
REABILITAÇÃO RUA BARÃO DE SÃO COSME
2018
REABILITAÇÃO DE Casa EM Lordelo do Ouro
2022
REABILITAÇÃO RUA DO ALMADA
2017
REABILITAÇÃO DE APARTAMENTO FLORIANÓPOLIS- BRASIL
2021
CASA EM RAMALDE
2020
↑
Back to Top