Work
Contact
Work
Contact
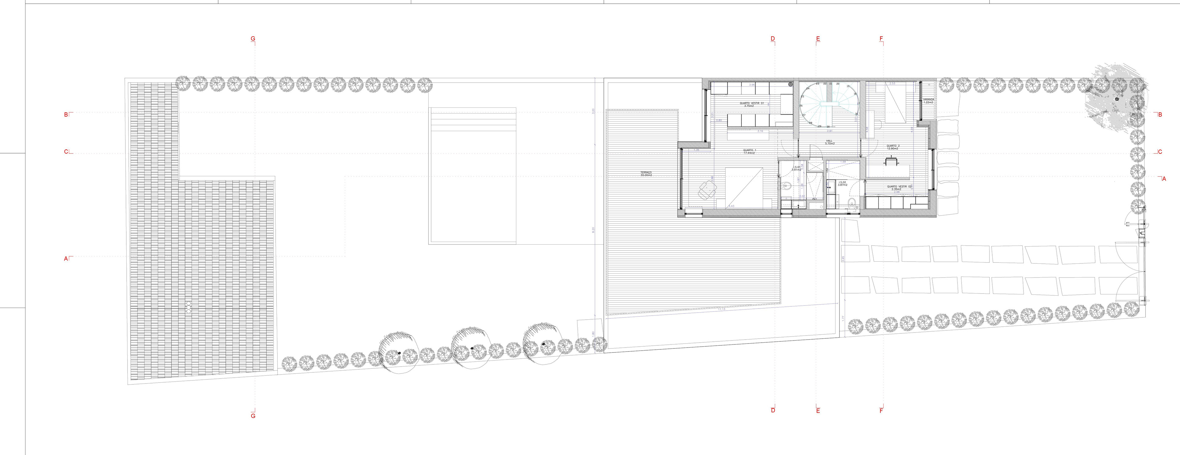
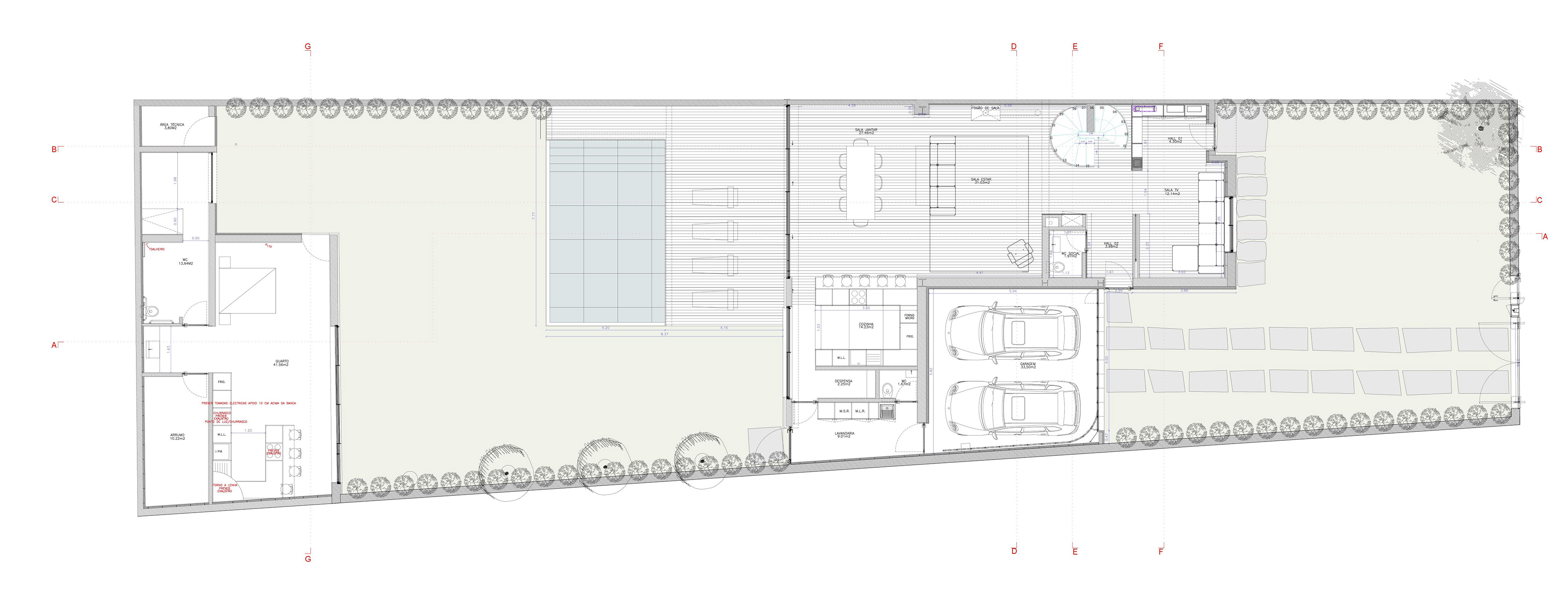
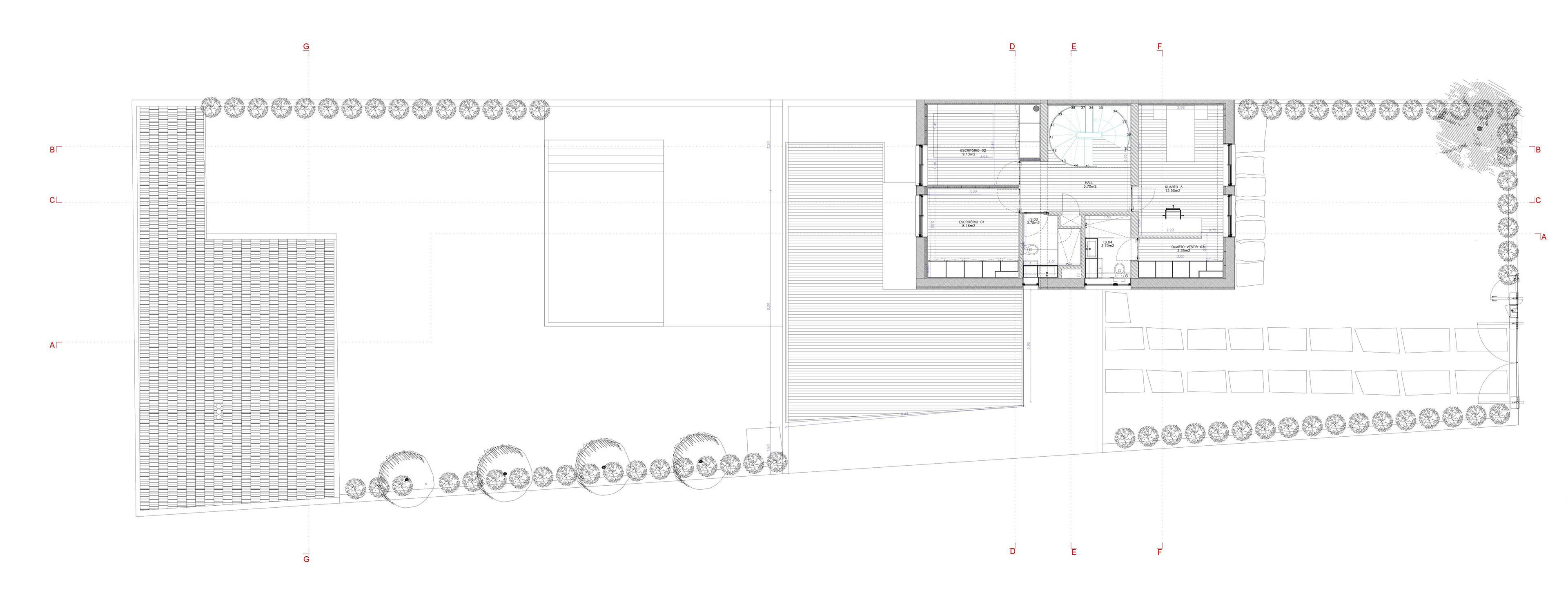
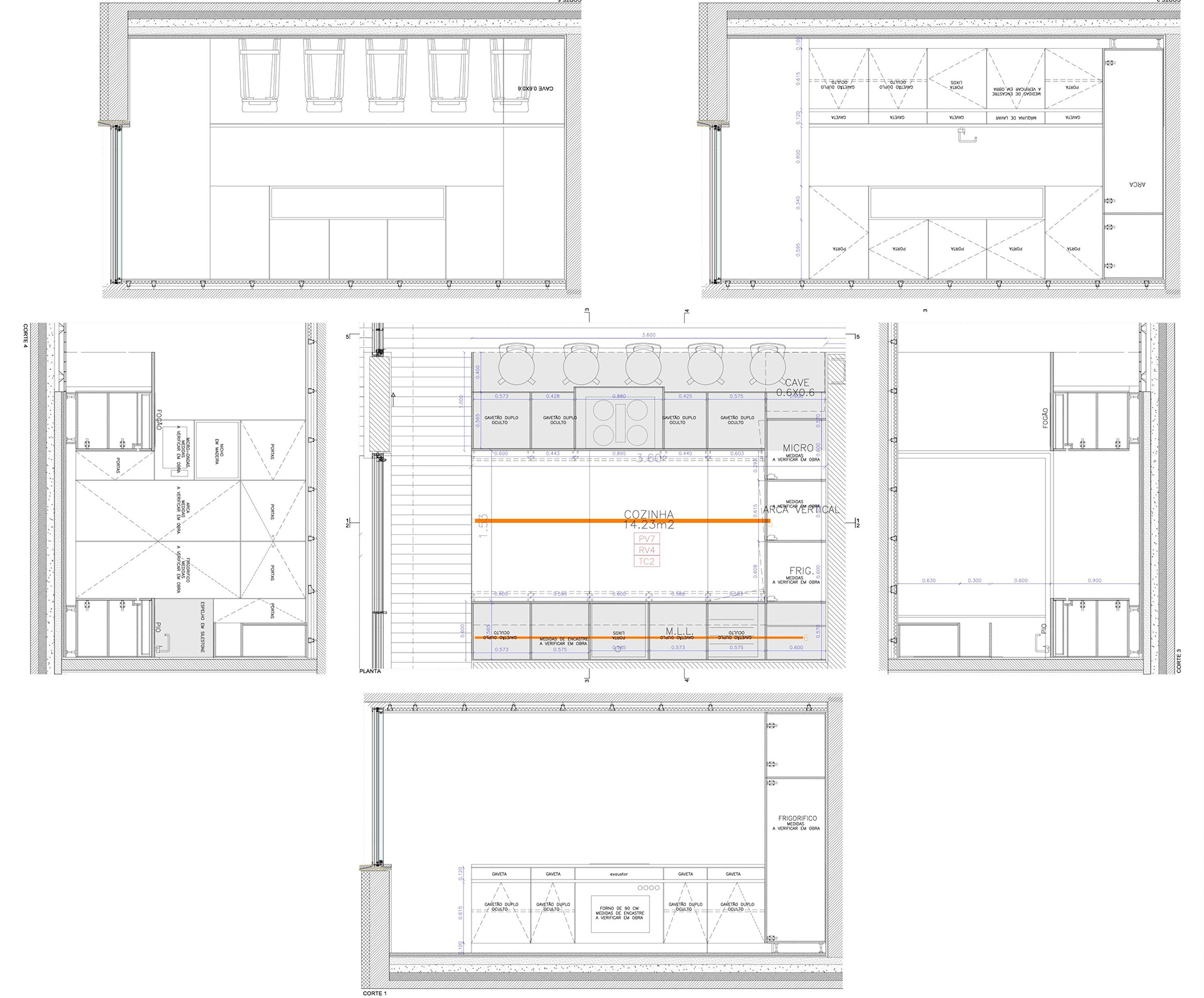
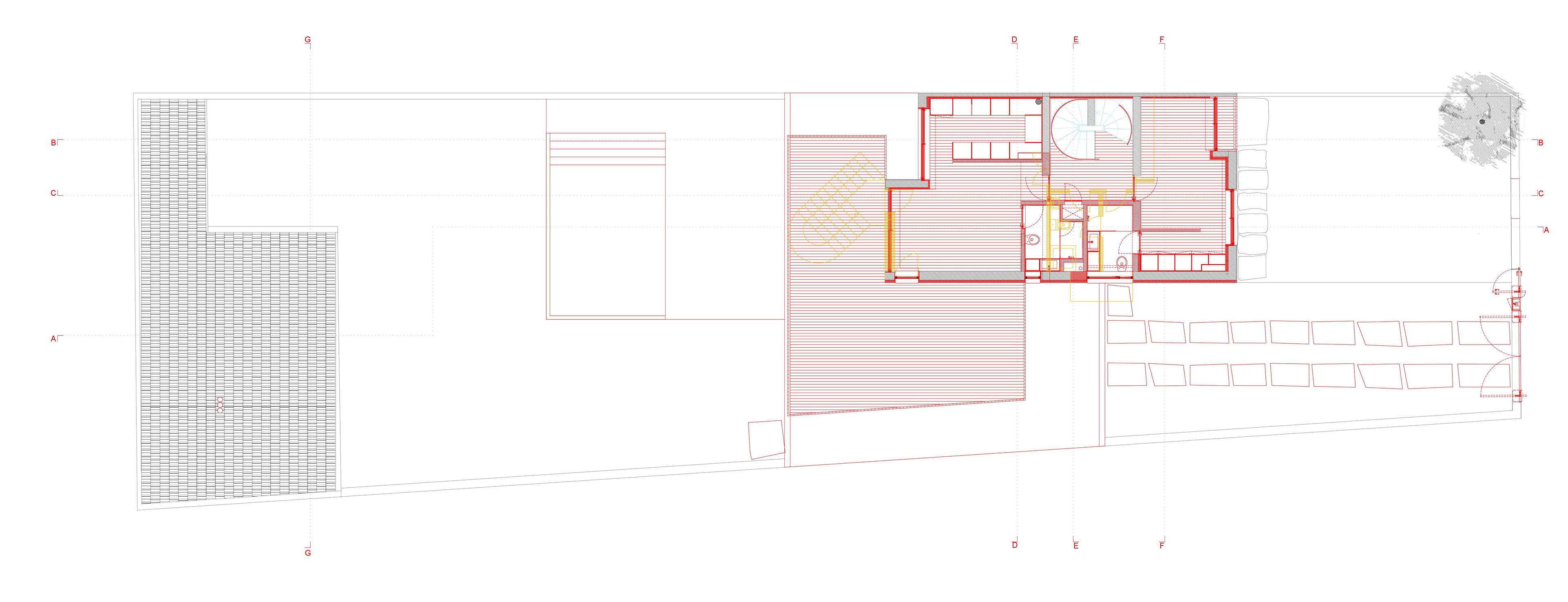
REABILITAÇÃO DE Casa EM Lordelo do Ouro
(OBRA A DECORRER)
You may also like
REABILITAÇÃO RUA BARÃO DE SÃO COSME
2018
CLÍNICA PORTO
2025
REABILITAÇÃO RUA DO ALMADA
2017
Projecto de interiores para guesthouse
2017
CASA EM RAMALDE
2020
CASA EM MATOSINHOS
2021
Alojamento Local Rua Sá da Bandeira
2018
REABILITAÇÃO DE APARTAMENTO MASSARELOS
2020
LOJA RESTAURAÇÃO YOVO
2016
Casa em Nevogilde
2016
↑
Back to Top