Work
Contact
Work
Contact
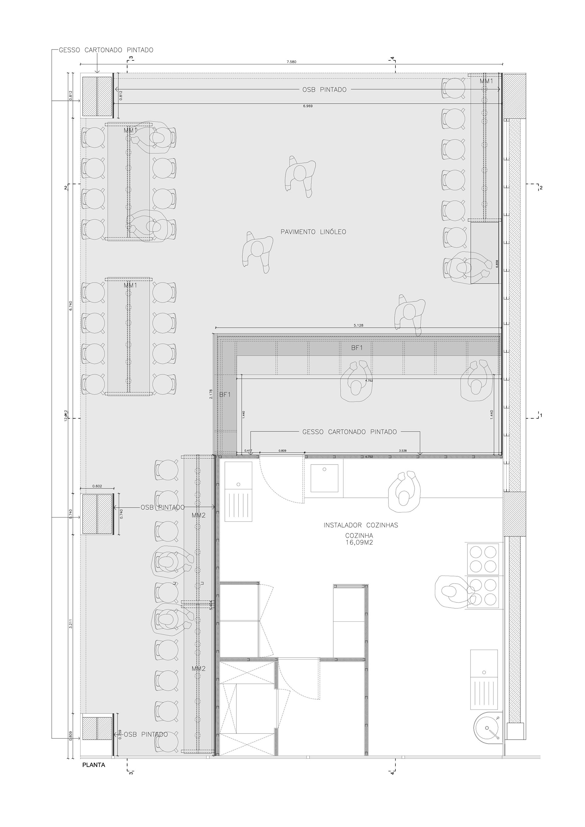
LOJA RESTAURAÇÃO YOVO
You may also like
CASA EM MATOSINHOS
2021
REABILITAÇÃO DE Casa EM Lordelo do Ouro
2022
Projecto de interiores para guesthouse
2017
REABILITAÇÃO DE CASA EM NEVOGILDE
2019
REABILITAÇÃO DE APARTAMENTO MASSARELOS
2020
REABILITAÇÃO RUA BARÃO DE SÃO COSME
2018
Alojamento Local Rua Sá da Bandeira
2018
Casa em Nevogilde
2016
REABILITAÇÃO DE APARTAMENTO FOZ VELHA
2020
REABILITAÇÃO RUA DO ALMADA
2017
↑
Back to Top